Confidentiality Agreement

Confidentiality agreement sub heading

I have read and agree to the Confidentiality Agreement

Agreement

Share this property with your friends

Please type comma separated emails if you want to share these properties with multiple people.

Submit Offer

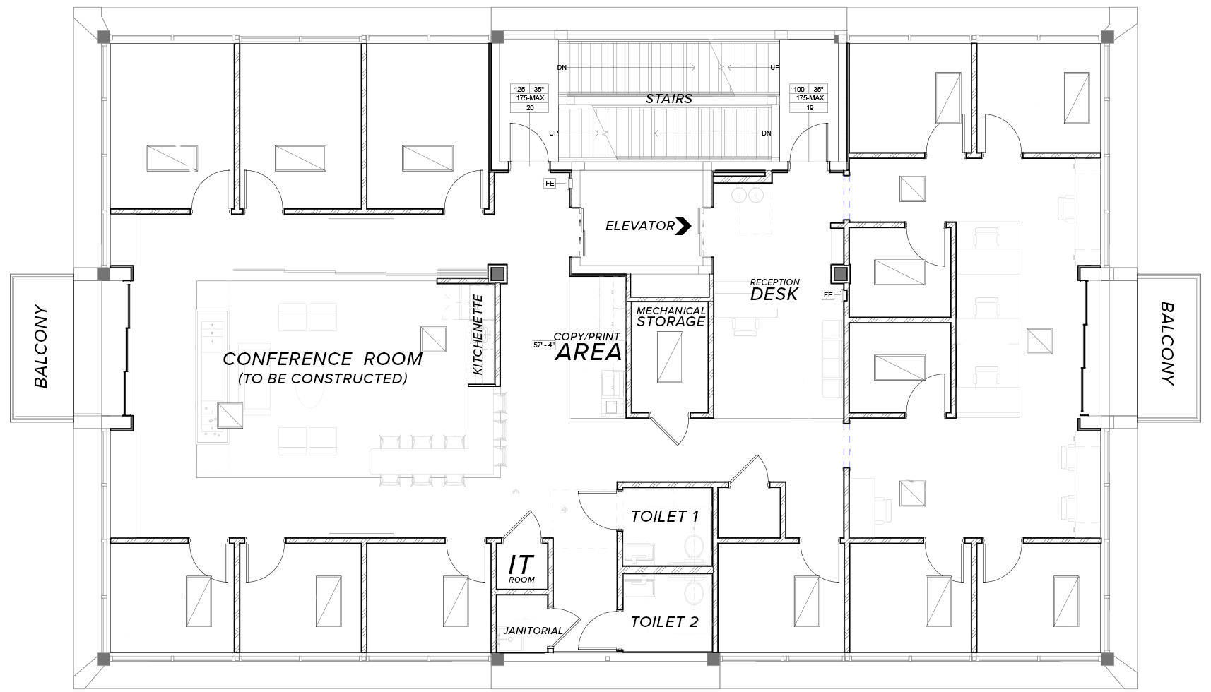
Executive Office Space

500 SE Osceola Street, Stuart, FL, 34994
For Lease

Property Details

  • Price: $30.00/SF NNN
  • Property Type: Office
  • Availability: Available
  • Transaction Type: For Lease
  • Building Size: 4,046 SF
  • Property Sub Type: Office
  • Lease Type: NNN
  • No. Stories: 2
  • Zoning Description: R3
  • Units: 13
  • Year Renovated: 2025

Property Description

  • Place your business in a highly accessible and professional setting along SE Osceola Street, just minutes from Downtown Stuart and directly across from Cleveland Clinic Martin North Hospital.
  • The 1st floor office suite features a layout that includes 13 private offices, with 11 offices ranging from approximately 56–84 SF and two larger offices measuring 124–126 SF. Most offices feature windows, providing natural light throughout the suite.
  • The space also includes a reception area with desk, open workstation areas, copy/print station, storage, and two restrooms.
  • A spacious common area presents the opportunity to build out a shared conference room, adding further functionality for professional users.
  • Ideal for medical-related professionals, therapists, attorneys, consultants, or other executive users seeking a well-located, turnkey office environment.

Download File

Download File

Download Offering Memorandum

3D Tour

Download Lease Brochure
Share this property

Request Information

Property Amenities

  • Spacious common area
  • Copy/print station
  • Two restrooms
  • Reception Desk
  • Natural lighting in most offices

Financial Summary

Investment Highlights

Price $0.00
Price / Unit $0.00
Gross Rent Multiplier 0.00
Proposed Loan Amount $0.00
Initial Investment $0.00

 

Income & Expenses

Income
Potential
Current

 

Expense
Potential
Current
Total Expenses
$ 0.00
$ 0.00
Net Operating Income $0.00 $0.00
Less Debt Service $0 $0
Potential Net Cash Flow $0.00 $0.00
Cash on Cash Return 0.00 % 0.00 %
Capitalization Rate 0.00 % 0.00 %

Rent Roll

Unit
BR/BA
Current Monthly Rent
Potential Monthly Rent
Status
Lease Expires

Totals

$ 0.00

$ 0.00

>

Let’s Get in Touch

Contact Us