Confidentiality Agreement

Confidentiality agreement sub heading

I have read and agree to the Confidentiality Agreement

Agreement

Share this property with your friends

Please type comma separated emails if you want to share these properties with multiple people.

Submit Offer

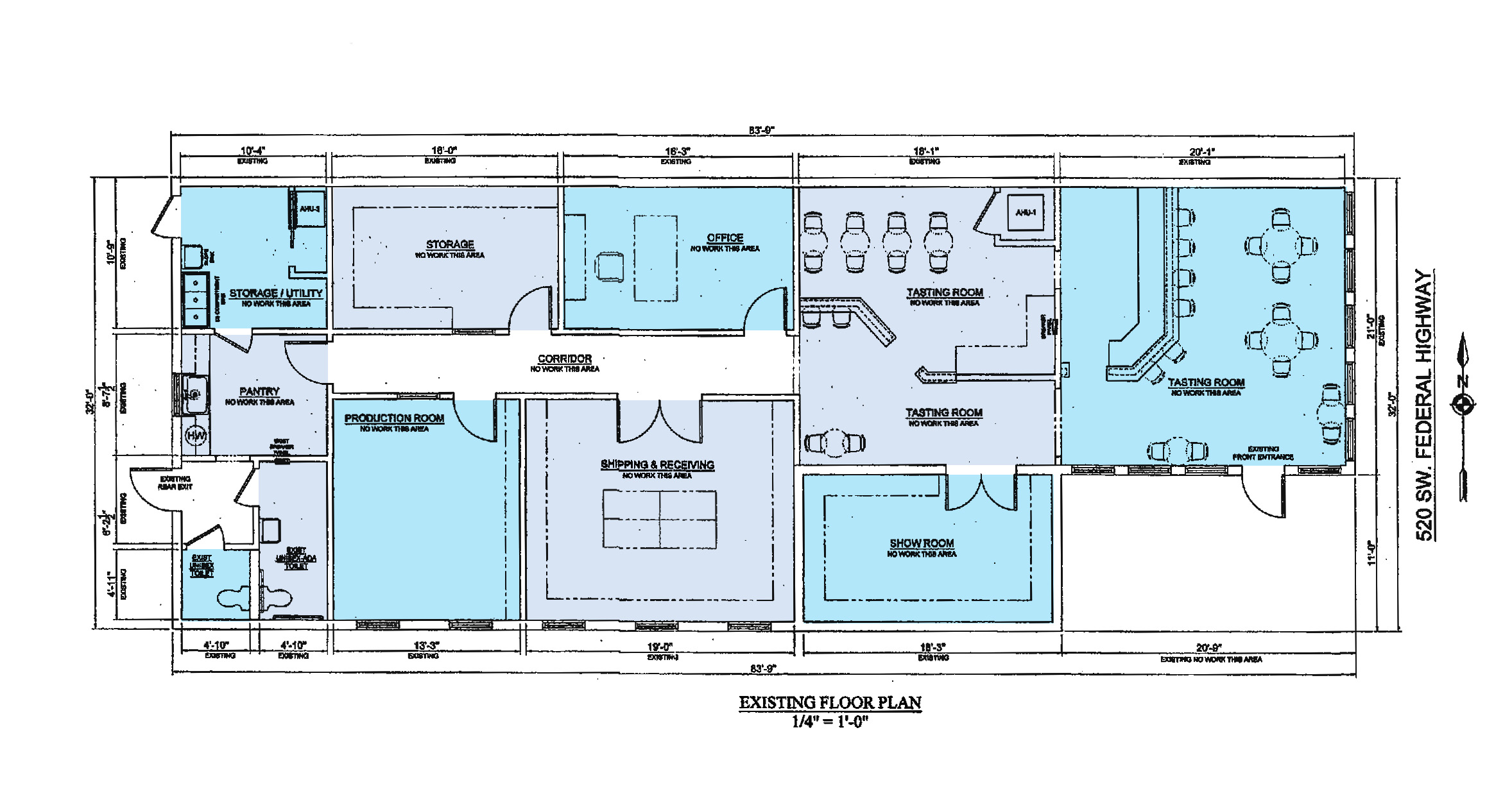
Freestanding Professional Office

520 SW Federal Highway, Stuart, FL, 34994
Leased

Property Details

  • Price: $28.00/SF
  • Property Type: Freestanding, Medical, Office, Retail
  • Availability: Leased
  • Transaction Type: Leased
  • Building Size: 2,720 SF
  • Lot Size: 0.25 AC
  • Lease Type: Gross
  • Year Built: 1973
  • No. Stories: 2
  • Zoning Description: B-2 Business General

Property Description

  • Exceptional freestanding office property with great frontage to US-1 in Stuart, FL.
  • Plenty of great amenities such as an ample reception area with conference room, partitioned offices, a kitchen, private restrooms, print/copy room, and a secure storage.
  • Property features ample parking and its own monument sign facing US-1 which receives an average of over 39,500 cars daily.
  • With a history as a contractor’s office and a cocktail bar, this versatile property is perfect for a wide variety of uses.
  • Site improvements include marble flooring, 8’ finished wood ceilings, recessed lighting, brand new roof, and impact glass windows.

Download File

Download File

Download Offering Memorandum

3D Tour

Download Lease Brochure
Share this property

Request Information


Financial Summary

Investment Highlights

Price $0.00
Price / Unit $0.00
Gross Rent Multiplier 0.00
Proposed Loan Amount $0.00
Initial Investment $0.00

 

Income & Expenses

Income
Potential
Current

 

Expense
Potential
Current
Total Expenses
$ 0.00
$ 0.00
Net Operating Income $0.00 $0.00
Less Debt Service $0 $0
Potential Net Cash Flow $0.00 $0.00
Cash on Cash Return 0.00 % 0.00 %
Capitalization Rate 0.00 % 0.00 %

Rent Roll

Unit
BR/BA
Current Monthly Rent
Potential Monthly Rent
Status
Lease Expires

Totals

$ 0.00

$ 0.00

>

Let’s Get in Touch

Contact Us